Lisboa, Mafra, Milharado, Venda do Pinheiro
Vende-se Moradia em Banda no Condomínio da Cerca – Venda do Pinheiro
Esta elegante moradia em banda de 3 pisos, localizada no exclusivo Condomínio da Cerca, em Venda do Pinheiro, é perfeita para quem procura uma combinação de conforto, privacidade e um estilo de vida familiar.
Principais Características:
-3 Quartos com Roupeiros Embutidos – Inclui uma ampla suíte no 1º piso, ideal para garantir privacidade e conforto .
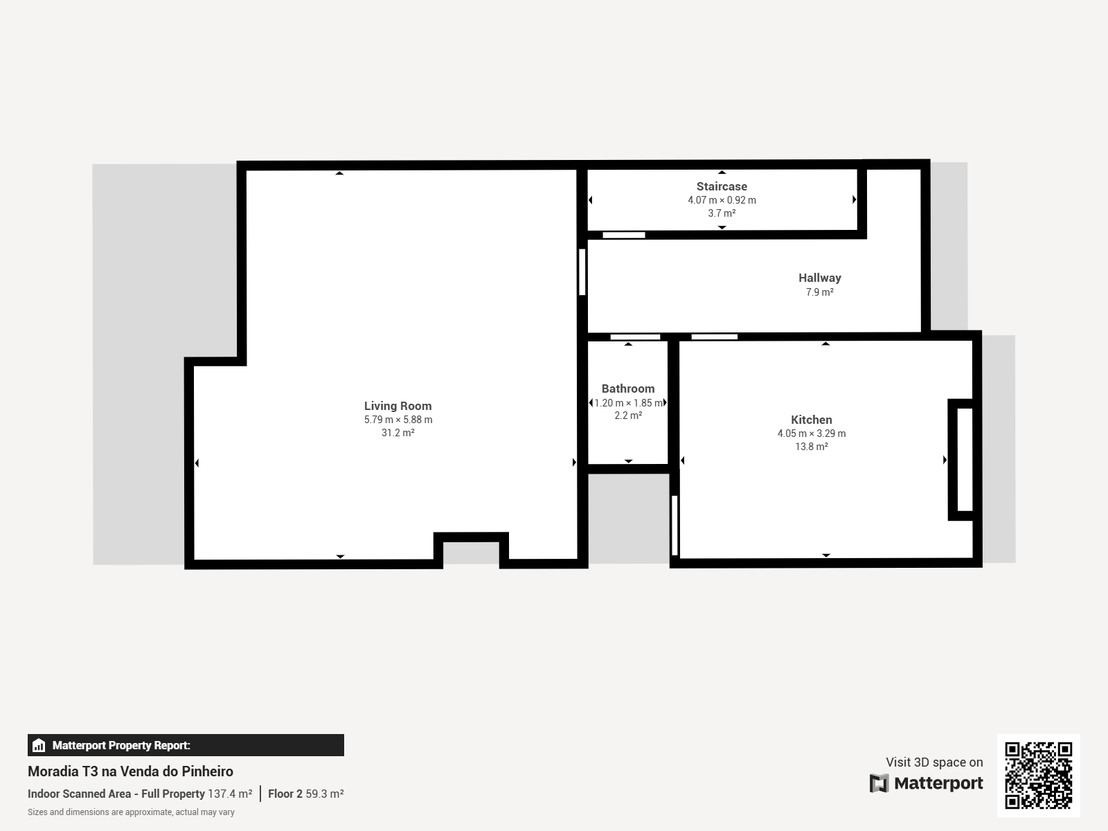
- Zona Social no Piso do Meio – A cozinha moderna e totalmente equipada, com despensa, é prática e funcional. A espaçosa sala de estar dá acesso direto a uma área exterior privada, perfeita para relaxar ou fazer churrascos sob o telheiro.
-Garagem e Arrumos no Piso Inferior – Uma garagem box fechada com capacidade para até 4 carros, além de uma prática zona de arrumos, oferece espaço de sobra para estacionamento e armazenamento.
-Espaço Externo Privado – Um terraço acolhedor e parcialmente coberto, ideal para momentos de lazer e refeições ao ar livre.
Conveniências do Condomínio:
-Piscina e Parque Infantil – Os residentes do Condomínio da Cerca desfrutam de uma piscina e parque infantil privativos, garantindo lazer e segurança para toda a família.
-Localização Estratégica – A apenas 2 minutos da entrada da autoestrada, a moradia combina a tranquilidade de um condomínio fechado com a conveniência de um acesso rápido aos principais eixos de transporte.
Esta moradia é uma oportunidade única para quem procura uma casa onde o conforto, o lazer e a qualidade de vida se juntam. Agende a sua visita e venha descobrir o seu novo lar!